裝配式建筑之應用——應急醫院
2021-11-04 作者:admin
新型冠狀病毒疫情防控期間,“云監工”直播火神山雷神山醫院施工現場火遍全網,在上千萬網友的矚目下一群“逆行”的中國建設者僅用10天時間完工并交付武漢火神山醫院。緊接著,雷神山醫院也正式交付使用,建設工期15天。其中傳染病醫院和裝配式建筑也成為了熱門字眼。
傳染病醫院的設計與一般的綜合醫院建筑設計有所不同,傳染病醫院設計的原則是在病原、宿主、環境這三個方面切斷傳染鏈,控制傳染源。
在平面布局上,要明確功能分區,明確各部門潔污分區與分流。平面布局上,醫療區要明確劃分出三區:清潔區、半清潔區或半污染區、污染區。流線上要明確劃分出三種流線:清潔路線、半污染路線、污染路線。特別要重視醫療區內患者活動區域與醫務工作人員工作區域的相對劃分,減少潔凈與污染人流、物流的相互感染機率。
傳染病醫院的設計既要防止院區外污染環境對院內醫療區的干擾污染,更要防范院內污染源的管理和控制,不能造成二次污染。患者使用過的一次性用品、污梯、紗布、食物殘渣、患者排泄物以及檢驗用血樣、體液標本、病理組織標本等均應根據不同傳染病種采用有效對路,定點定人收集,采取可靠的無菌消毒處理措施。各種人流物流要有明確的科學規劃,采取嚴密的措施。
所以說傳染病醫院設計的難點是:
1、局限污染區、就地消毒;
2、控制中間區、少受污染;
3、保護清潔區、不受污染。
同時,設計上要考慮患者就診的醫療環境,同時也要考慮長期在此工作的醫護人員的環境空間,盡量創造人性化的、綠色生態的室內外環境。
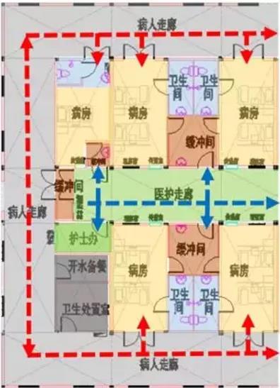
下面是武漢火神山醫院的局部病房平面圖,紅色虛線表示的是患者流線,藍色虛線表示的是醫生流線,兩種流線沒有交叉。

從2015年至今,國家一直在大力推進裝配式建筑的發展,經過設計、生產、施工等全產業鏈企業的不斷研發和實踐,已經逐步實現了工廠化生產、現場快速裝配的效果。
模塊化建筑是裝配式建筑的一種形式,是將傳統房屋以單個房間或一定的三維建筑空間為建筑模塊單元進行劃分,其每個單元都在工廠內完成預制且進行精裝修,單元運輸到工地進行裝配連接而成的一種新型建筑形式。
模塊化建筑的結構是由若干個穩定且自承重的空間子結構組成,通過適當方式沿豎向和水平方向進行拼接,最終形成完整結構體系。在建造方式上,模塊鋼結構的框架加工、圍護制作、管線安裝甚至于精裝修,均已在工廠完成,然后再將制作好的單元運輸至現場進行拼裝,因此在現場施工的周期可以壓縮到非常短。
此次武漢火神山醫院、雷神山醫院建造時間非常短,因此采用了模塊化建筑的形式,整個建筑是由若干個6m*3m的模塊組合而成的。

下面是火神山醫院的局部平面圖,可以看出,若干個6m*3m的模塊化尺寸通過水平與垂直方向不同的組合方式,形成了病房、衛生間、緩沖間、病人走廊、醫護走廊等等不同的功能分區,基本解決了傳染病醫院的流線及分區問題。

此次建設充分發揮了模塊建筑的優勢:
模塊化:所有的功能均由大小相同的模塊組合而成,能夠滿足極快的建造速度要求。
工業化:要求在極短時間內的完成建設,因此設計師要充分利用現有的模塊產品尺寸。在現場處理地坪的同時,模塊在工廠內同步生產,工廠的環境及室內的施工條件將確保其質量更易控制及改善,減少缺陷,產品的可靠性提高,同時還有較高的生產效率。
裝配化:現場的施工周期非常短,除了地坪平整、基礎處理等濕作業外,現場其他的部分,如設備管線安裝、門窗安裝、室內設施安裝等等完全是干法施工,各工種交叉作業,與傳統建造方式相比,節約時間的同時,還減少施工和裝修垃圾約70%。



但目前這種模塊化建筑的室內設施還相對簡單,比起傳統建造的醫院建筑還有很多地方需要改進,如集成醫療帶、集成衛浴、成品收納家具等等,都需要各部品部件與模塊廠家進行集成。
這本是標準院編制的標準圖集《鋼結構箱式模塊化房屋建筑構造(一)》,主要介紹了浩石公司的鋼結構箱式模塊化房屋在建筑中的應用,希望這本圖集能夠在緊急關頭在全國各地發揮它的作用。

疫情還在繼續,各地紛紛改擴建應急傳染病醫院,如何在較短時間內建成一座滿足醫療需求、同時品質較高的傳染病醫院,需要裝配式建筑全產業鏈的設計、生產、施工廠家共同努力才能夠實現。
另外,針對可能出現的各種高傳播性疾病,應該制定一些與城市規模、人口數量等等相對應的“應急醫院建設標準”,以便儲備一定規模的場地及建材,以備不時之需的改擴建呢?大家有什么好的建議呢?
